Search for:
  • İşler
  • DUA
  • Ödüller
  • Yayınlar
  • Sunumlar
  • Referanslar
  • İletişim
Facebook Instagram Twitter
logo_hi
Facebook Instagram Twitter
  • İşler
  • DUA
  • Ödüller
  • Yayınlar
  • Sunumlar
  • Referanslar
  • İletişim

2015 #01

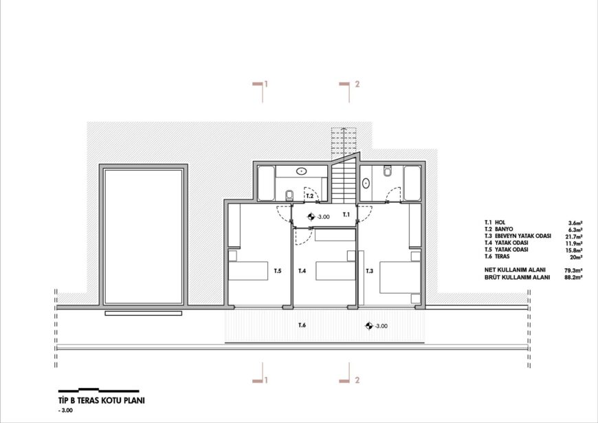
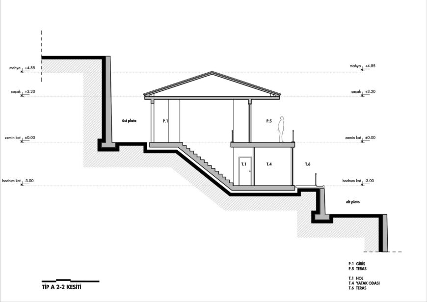
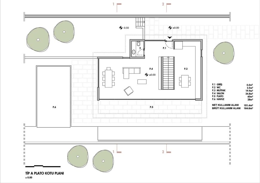
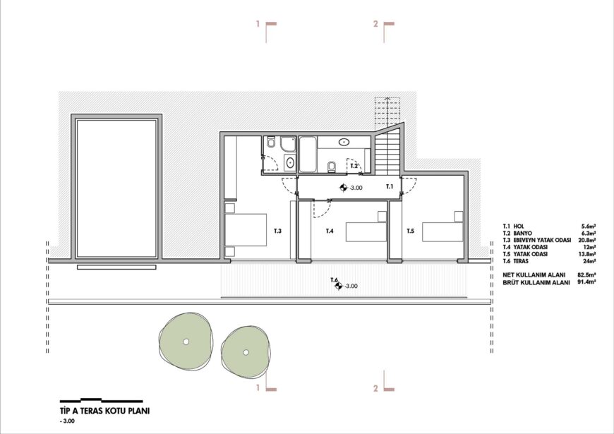
Turunç’ta Konut Yerleşmesi

Mimari

Ekip: Deren Uysal, Levent Uysal
İşveren: Erdal Kandemir
Toplam İnşaat Alanı: 1340 m²
Proje Yeri: Marmaris, Muğla

  • Share to Facebook
  • Share to Twitter
  • Post to Pinterest
  • Post to Tumblr
  • Share
Prev Lüleburgaz Kadın Akademisi
Prev Captor Cube

© 2020 Deren Uysal Architecture – Mimarlık

Marmaris – İstanbul

Facebook Instagram Twitter