2016 #04
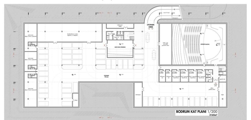
Selçuk Kültür ve Gençlik Merkezi / 1. Mansiyon Ödülü
Selçuk Belediyesi Kültür ve Gençlik Merkezi Mimari Proje Yarışması
Mimari, Yarışma
Ekip: Deren Uysal, Levent Uysal
İşveren: Selçuk Belediyesi
Toplam İnşaat Alanı: 7078 m²
Proje Yeri: Selçuk, İzmir





























