2018 #04
Çanakkale Çarşı, Yaşam Merkezi ve Otopark
Çanakkale Belediyesi Çarşı, Yaşam Merkezi, Otopark ve Yakın Çevresi Ulusal Mimari Proje Yarışması
Mimari, Kentsel Tasarım, Yarışma
Ekip: Deren Uysal, Selen Özdoğan, Levent Uysal, Yağmur Aslan
İşveren: Çanakkale Belediyesi
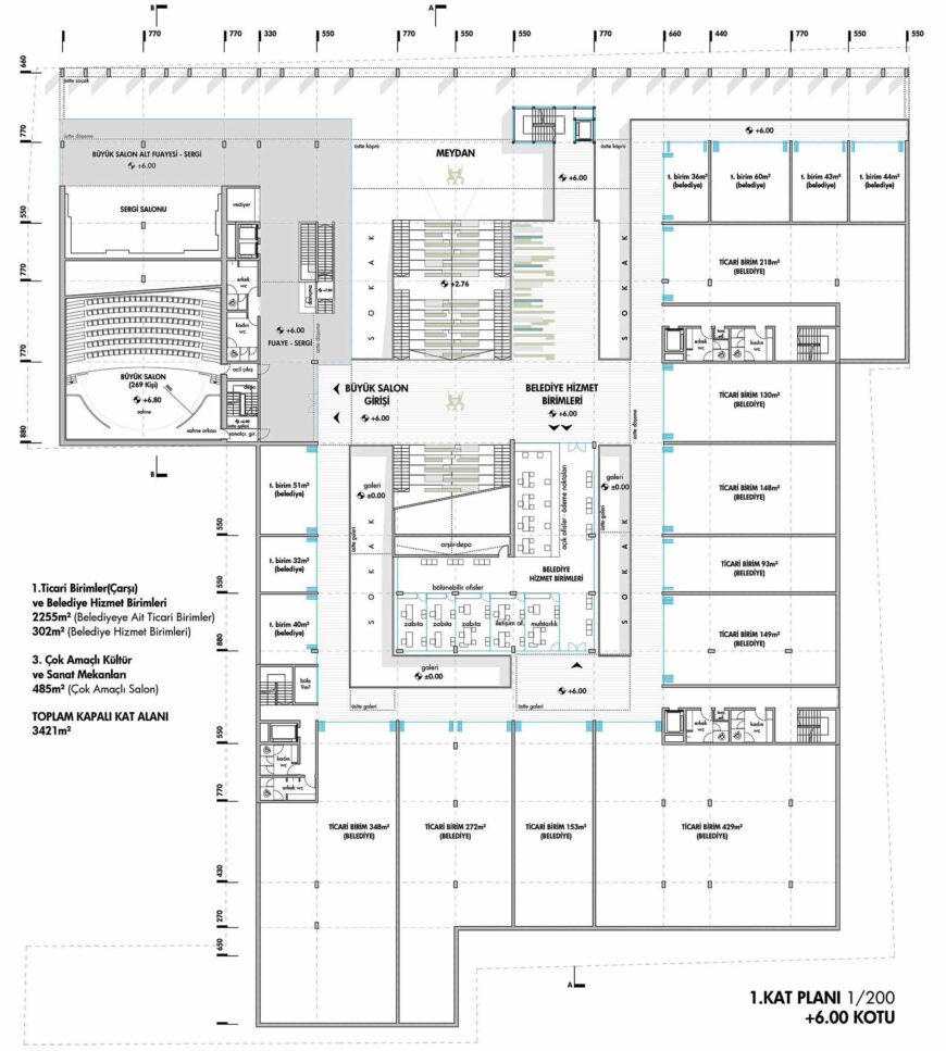
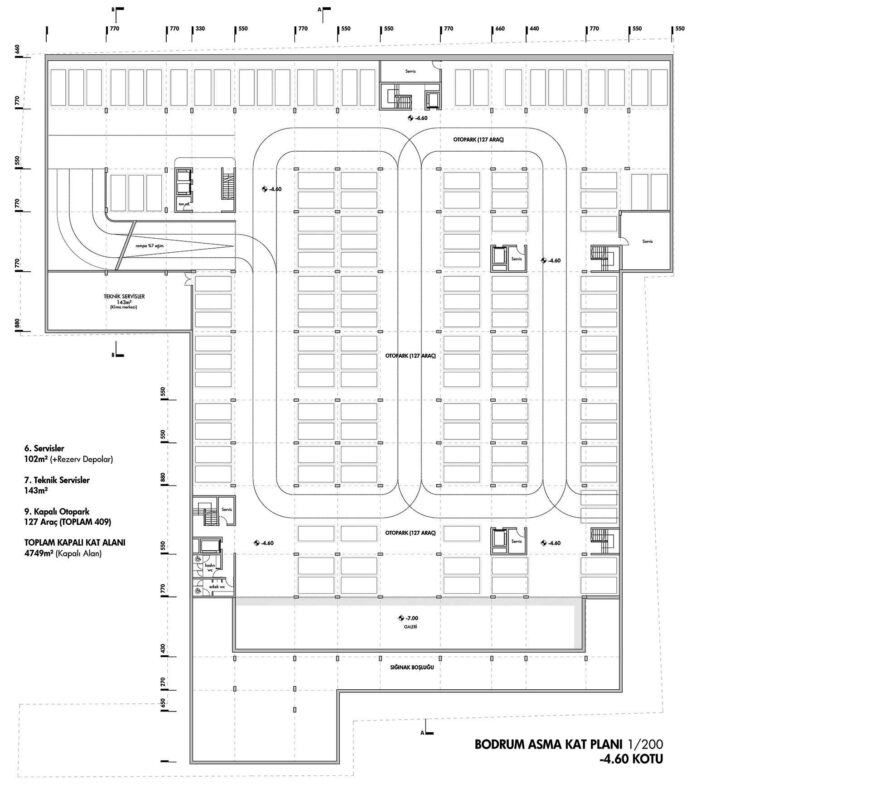
Toplam İnşaat Alanı: 27590 m²
Proje Yeri: Çanakkale



























